At Maris Architecture, we specialize in providing comprehensive architectural solutions tailored to meet the unique needs of our clients. With a focus on low-rise residential design, we offer a range of services designed to guide your project from concept to completion with precision and creativity.

Masterplanning / Development
Masterplanning and development are foundational stages where we collaborate closely with clients to shape the strategic vision of their projects. Beginning with detailed feasibility studies, we assess site potential, regulatory constraints, and client objectives to establish a clear roadmap for development. Our expertise lies in crafting masterplans that optimize space utilization, enhance community integration, and uphold sustainable principles. Through careful analysis and stakeholder engagement, we ensure that every masterplan aligns with local planning policies and sets the stage for successful project implementation.
Planning Drawings
Planning drawings are pivotal in translating conceptual ideas into practical design solutions that meet regulatory requirements and client expectations. Our team excels in producing detailed planning drawings that outline spatial layouts, building configurations, and exterior elevations. We navigate complex planning regulations and permissions with precision, ensuring that each drawing package supports a streamlined approval process. By incorporating client feedback and regulatory feedback into our designs, we facilitate a collaborative approach that promotes project feasibility and regulatory compliance.


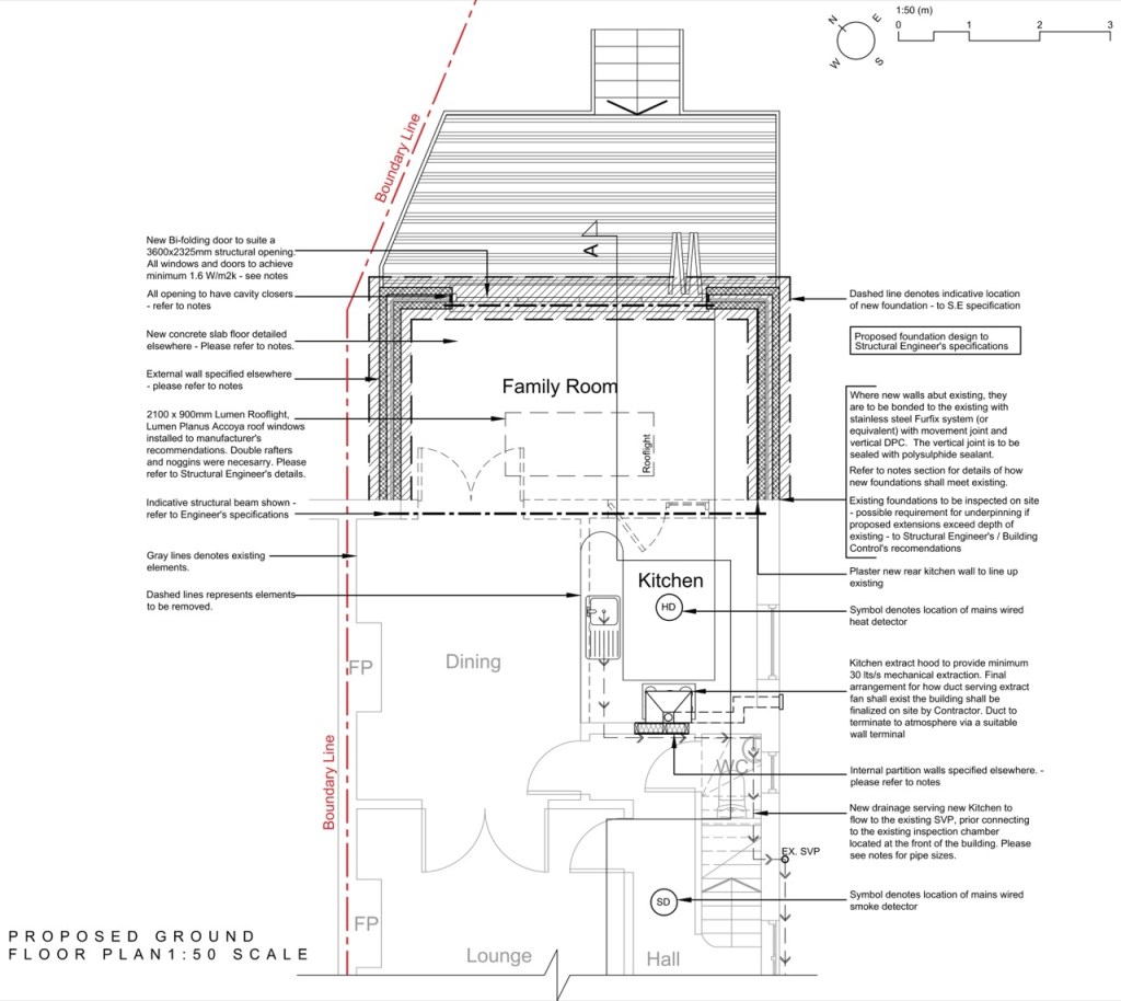
Technical Design
Technical design forms the backbone of our architectural service offerings, encompassing the creation of comprehensive architectural working drawings. These detailed documents serve as the definitive guide for construction, specifying materials, dimensions, and construction techniques with meticulous accuracy. Our technical design process emphasizes functionality, durability, and design coherence, ensuring that every architectural detail is meticulously documented and executed. From structural specifications to mechanical systems integration, we prioritize clarity and precision to support seamless construction implementation and project success.
House Extensions
House extensions present an opportunity to enhance living spaces and accommodate evolving lifestyle needs without the disruption of relocating. At Maris Architecture, we specialize in designing bespoke house extensions that seamlessly integrate with existing structures while enhancing architectural cohesion and functionality. Our approach begins with a thorough assessment of client requirements and site conditions, allowing us to propose innovative design solutions that maximize space utilization and aesthetic harmony. Whether you’re envisioning a rear extension, loft conversion, or annex addition, we prioritize design excellence and client satisfaction to deliver transformative living environments that exceed expectations.


